
Sunkiųjų keltuvo gervė, dvigubo spindulio Ožinių kranų 30 tonų
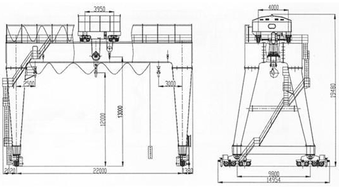
Dvigubo spindulio tiltiniu kranu su kabliukais yra taikomas ne sandėlio ar geležinkelio į šoną daryti bendrą kėlimo ir iškrovimo darbų. Šios rūšies kranas sudaro tiltas, remti kojos, kranas kelionės organų, su stiprus kėlimo gervė, elektros įrangos ir kontrolės sistema. Kaip savo sunkiosios dizainas, ji gali būti plačiai naudojamas visų rūšių pramonės srityje.
sunkiųjų keltuvo gervė, dvigubo spindulio Ožinių kranų 30 tonų
Dvigubo spindulio tiltiniu kranu su kabliukais yra taikomas ne sandėlio ar geležinkelio į šoną daryti bendrą kėlimo ir iškrovimo darbų. Šios rūšies kranas sudaro tiltas, remti kojos, kranas kelionės organų, su stiprus kėlimo gervė, elektros įrangos ir kontrolės sistema. Kaip savo sunkiosios dizainas, ji gali būti plačiai naudojamas visų rūšių pramonės srityje.






English
српски (ћирилица)
tlhIngan
Bai Miaowen
hrvatski
suomi
dansk
türkiye
Français
Eesti
Deutsch
slovenčina





